
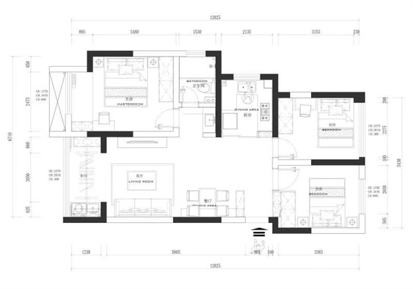
本案為中間戶,三室改造房,是非常輕快時尚的小輕奢風格,鹿角元素點綴時尚、靈動。
客廳

客廳與陽臺無移門隔開,更大程度的攬入自然光線。地磚通透,折射在墻壁上的光影使整個空間更加靈動。素雅的色調,舒適自然,整體以功能性為主。

電視背景墻以木飾面為主,以少量金屬線條雕刻,原木色的自然感在白色的輝映下顯得極其生動,空間也更為協調。
陽臺

陽臺設計更考慮其功能性,將洗衣機嵌入陽臺臺盆中,抽拉式水龍頭清潔更加方便。另一側合理利用墻面空間,采用整面收納柜,中空設計便于擺放常用物件。
餐廳

客廳與餐廳存在于同一空間,統一的柔軟色調,為彼此空間增添更多的互動性。客餐廳一體的空間,好處在于移步換景,將餐廳作為獨立空間觀賞,清透感十足。可抽拉式的餐桌,既能滿足一家人平時用餐,亦能三五好友相聚,擁爐對酒,共譚風月。
玄關

玄關兩面皆作收納柜,與餐廳以半隔斷分區,既劃分功能區域,又不顯得沉悶壓抑。玄關柜底部留空,適宜居者入戶換鞋,柜體中部設計開放格,讓換鞋時能有一個支撐點,同事能放置鑰匙等隨手物件。
廚房

廚房正對入戶門,設計師巧用門口區域,做了一個壁龕處理,開放格展示,底部收納。廚柜采用藍灰色模壓門板,簡約又個性,用簡單平淡感悟人生真諦。
主臥

主臥床頭背景采用溫暖的米黃色,配合球形暖色壁燈,暖色調的環境更適合入睡。沒有復雜吊頂作為累贅,以衣柜做出空間層次,金屬線條所點綴的白色空間略顯時尚。灰色軟包床頭在這靜謐的空間顯得格外舒適,由色彩舒緩感官,使得生活回歸寧靜。飄窗臺另一側做收納柜,在如此閑適的小時光里,作為老師的業主,必定少不了每日讀上一本。
次臥

無需多余的色彩,簡潔為主,最自如的設計是充分利用大利潤的饋贈,透過光影交織產生的明暗變化,書寫安然時光。
衛生間

干濕分離的衛生間,干區獨立于浴室之外,動線合理,便于多人同時使用。浴室內通過不同材質,以及黑白灰色調,刻畫空間肌理,將美觀耐用完美結合。





