一層

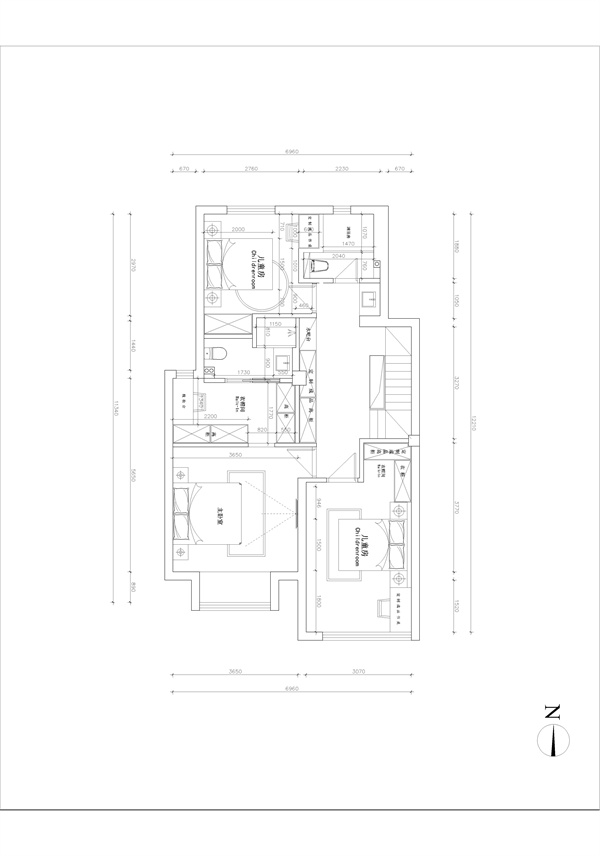
二層

本案為現代風格,低飽和的淡雅色調,構筑豐滿又平淡的日常生活。
玄關

入戶玄關由透明樓梯做隔斷效應,玄關與多個空間的無縫交流,塑造了空間的多重性。淺灰色柜面,散發高雅卓越的低調氣質,隱藏式收納與開放式收納結合,蘊藏平淡與不凡。整體為歐派定制柜,柜體內置燈帶,提升空間氣質,強化木料質感,打破空間單一。整體空間多用溫潤的石材,減少入戶景觀的厚重感,增添輕盈質感。
客廳

客餐一體的布局,讓活動空間更趨于開放式,在視覺上擁有通透感與延伸性。大理石背景墻以木柵飾面點綴,蘊含的自然肌理又被內嵌的金屬飾條切割,將空間串聯。
餐廳

無論是餐邊柜、餐桌椅、還是地面頂面,對于材質紋理的拿捏,設計師處理得似乎恰到好處。六人位的餐桌滿足一家人的用餐需求,餐邊柜可作為西廚,嵌入烤箱蒸箱。
廚房

U型廚房布局,給主人充分的活動空間,點綴一絲綠意,兼容美學,浸透于自然。廚房照明以頂面的燈帶與筒燈為主,去繁存簡,而灰褐色的廚柜與白色臺面搭配,給空間注入溫暖。
樓梯

開放式的樓梯,打開格局,燈光與自然光的交錯縱橫,讓規整的空間,多一分情緒。透明玻璃搭配黑色啞光扶手,簡潔通透,同色系的磚面也銜接得恰到好處。
走廊

穿過樓梯來到二樓的走廊空間,星光點點的吊燈與邊柜內置燈帶相呼應,提升著整體空間質感。
主臥

主臥空間清淡雅致,利用軟裝上的墨綠色提升空間氣質,飄窗臺打破空間單一性。通過不同的空間布局,讓主臥的套房設計更加明確,衣帽間與主衛的獨立,讓獨立的臥室區域更加明朗舒適。

軟包背景墻面,兩側點綴金屬線條,米、白、灰的三色搭配,安逸而寧靜。
衣帽間

獨立衣帽間內置梳妝臺,一側的小窗臺增加空氣流通,墻面的綠植賦予空間生機。步入式的格局,擴大衣帽間的收納區域,茶色透明柜門與灰色柜門搭配,讓收納有顯有藏。
次臥

二樓朝南的次臥可作為書房和兒童房使用,富含層次感的空間布局,讓整體看起來更加舒適。保留原戶型本有的整面落地玻璃窗,用作悠閑午后的休閑之所,一光影,訴說時光給予的故事。

整體色調更偏向于環保主題,原木色柜子與白色柜門搭配,簡潔明了。在保證了充分的收納空間后,設計師把床體兩側利用定制處理床頭柜,將實用性和整體性做到最大化。
地下室

地下室主要以娛樂為主,整體色調與燈光無需過量,采用便于收拾打理的材質以及寬敞的布局即可。天井的保留,既可作為榻榻米休閑區,也為地下室的封閉空間增加了自然氣息。
衛生間

公衛干濕分離,干區獨立于外,馬桶水箱隱藏,上方設計壁龕,增加隱性收納。內衛保證功能性齊全,角落利用淋浴房做干濕分離,黑白灰、冷暖調串聯著人與空間的對話。





