

家居空間和商業空間不同之處在于其設計畫像定義。空間可理解成這是主人的外衣,設計師根據不同業主各自的價值取向和各自的生活習慣,定義其空間風格。本案為現代風格,而整體配色的靈感,源于業主對時尚潮流的敏銳嗅覺。
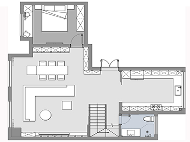
客廳

縱覽客餐廳,一切從簡,打造出一個開放、舒適的環境,高級灰與原木色的碰撞,自然又穩重。客廳無主燈設計,磁吸式軌道燈與燈帶設計,滿足客廳空間的日常照明。

白色大理石電視背景墻大氣時尚,格柵木飾面護墻板點綴墻面一側,貼近自然。電視背景墻另一側做收納功能,壁龕與收納柜雙重組合,滿足業主的不同需求。

雙陽臺通透,灰色皮質沙發與灰色大理石瓷磚相輔相成,充滿原始質感,每個空間平穩而又互有聯動性。
玄關

玄關柜的木色肌理與瓷磚的石材紋理,在空間韻律與燈光倒影間互相交織。
餐廳

客餐廳一體,餐桌旁帶島臺設計,中性色彩簡潔明快,極簡頂面開闊大氣。原木餐邊柜打造溫暖的就餐環境,島臺與餐桌相連,使空間功能更加獨立。
廚房

廚房設計為空間亮點,業主喜歡面積大,便于操作的功能性廚房,于是設計師在空間上,為廚房留出了足夠大的空間。U形廚房布局增加操作區,同時活動空間也變得更開闊,櫥柜采用馬卡龍色系,獨特有品位。蒸箱烤箱完美嵌入櫥柜內,定制柜體為雙開門冰箱留下足夠的空間,空間分布更好的展現了生活的維度。
樓梯

樓梯與客廳自然過渡,同色系瓷磚自然銜接,透明玻璃搭配黑色啞光扶手,自然大氣。梯下做儲藏室,合理利用空間,強化收納功能,從細微處優化空間細節。
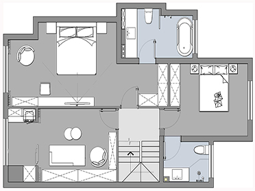
主臥

極簡的空間,充分留白,運用原木色調營造優雅自在的生活空間。床頭采用原木護墻板,內嵌燈帶,是一種空間情緒的表達,更有質感與氛圍。主臥自帶休閑陽臺,柔和的空間光影帶來的是怡然自得的安逸居所。吊頂做燈帶處理,加深空間層次,設計師巧妙的利用光,使整體更接近于自然。

原木材質的生命力體現的是主臥的空間氣質,無論是地板、護墻板還是衣柜,主臥總給人一種貼近自然的沉淀感。主臥自帶小衣帽間,其設計感貼近全屋的設計內涵,同時增加收納。
次臥

次臥以極簡主義為主,床頭兩側射燈代替床頭燈,減少繁復累贅。嵌入式衣柜整潔干脆,與主臥柜體統一,臥室自帶衛生間,為小套房設計。床頭黑色軟包增加柔軟舒適,利用吊頂隱藏窗簾簾頭,是空間更為干凈利落。
次臥二

兩個次臥的設計都以極簡為主,平整的吊頂設計,消除視覺疲勞感。飄窗臺利用定制柜,為臥室增加大面積的收納空間,一側的壁龕設計,美觀又實用。定制四門儲物柜,滿足客房的日常收納,黑色線條把手與原木色搭配更加簡約。衣柜靠入門處設計開放格,放上藝術品打造入戶小景,同時也能放置一些隨手物件。
衣帽間

除了每個臥室內都配備的衣柜與衣帽間外,業主將其中一個次臥空間改造為獨立衣帽間。極簡的原木風格,不僅擁有強大的收納功能,其自帶的生活陽臺還可以作為洗衣晾曬區,避免了其他空間因衣物晾曬導致的采光不足。
衛生間

衛生間以大理石元素為主,黑與灰的搭配,低調沉穩,整體收納功能齊全。整體以黑色邊框修飾,黑白灰為主,燈光設計與瓷磚反射,使空間更加明亮。干濕區以黑色透明玻璃為隔斷,淡化邊界感。超寬臺面單水槽設計,實用又整潔,發光鏡面后置燈帶,質感與顏值兼備。

浴缸,便是生活品質的象征。
生活的忙碌喧囂,需要依賴沐浴來消除,足夠大的衛生間,必須要安裝一個可以泡澡的浴缸。

設計師說:
“關于住宅設計,功能好像沒什么可以說的了,更應該關注的是這個房子和主人的關系,一種心照不宣的見解是,簡約的設計是最困難的。減少綴飾,用體塊的削減、堆疊與線條、材質的碰撞來實現的空間的豐富。非黑即白的世界是簡單的,我們想在進入家門的那一刻就能得到寧靜。把眼花繚亂的色彩通通隔絕于門外,華而不實的設計終將被拋棄,那些真正符合需求的設計,回歸真實生活,是最適合的空間設計。”





